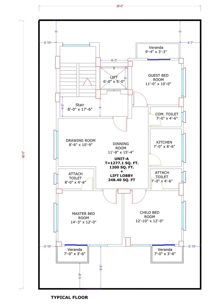
DEAL -04
We constructed a Single unit 1280 Sq Ft
apartment's in Dhaka, Bangladesh,
Total Area 2100 Sq. Ft,
Floor Nos: G+6,
FAR: 3+
Per Unit Contains 1 Guest Bed, 2 Bedroom with
attached Toilet, Drawing, Dining, Spacious Kitchen, Common Toilet Etc.


Dream Pricing:
Contact us to fulfill this dream
DEAL -04 Video Presentation

Dream Pricing:
30M BDT Build Cost in 2023
or
